Argeton Tampa Lineo Pearlwhite different surfaces

Details

Beispiele für Anschlussdetails.

Vertikale Unterkonstruktion

Sturz mit Aluminiumblech

Argeton Detail Lintel with sheet

Sturz mit Keramikziegel

Argeton Detail Lintel with ceramic tile

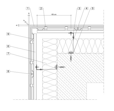
Sturzausbildung mit Sonnenschutz

Technical drawing Argeton Lintel design with sunprotection

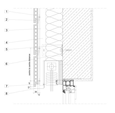
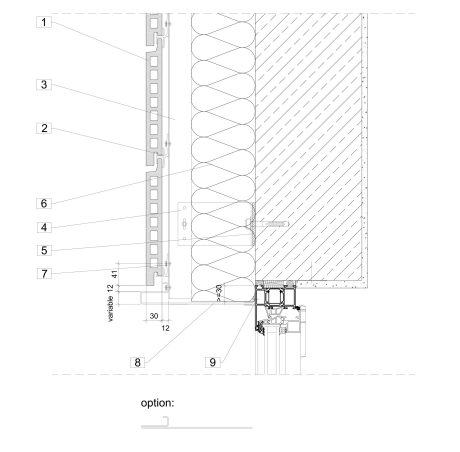
Unterer Anschluss

Argeton Detail Bottom junction

Oberer Anschluss

Argeton detail Top junction

Fassade und Putz

Argeton detail Facade and plaster

Fassadendecke

Argeton deteil Facade ceiling

Fensterbank

Argeton detail windowsill

Horizontale Unterkonstruktion

Normalbereich

Umgreifende Außenecke

Innenecke

Anschluss - Fenster / Fensterlaibung mit Laibungsblech

Mehr erfahren

Das Team von Argeton

Zögern Sie nicht, sich an unser Servicepersonal zu wenden, um weitere Informationen zu erhalten.

Vertriebspartner

Wir arbeiten mit den besten Vertriebspartnern zusammen, um weltweit den besten Service bieten zu können.

Fertigungspartner

Wir arbeiten mit den besten Fertigungspartnern zusammen, um weltweit den besten Service bieten zu können.