Argeton Tampa Lineo Pearlwhite different surfaces

Details

Examples for connection details.

Vertical Substructure

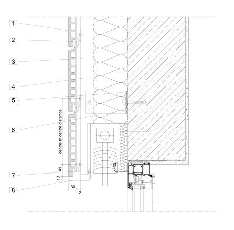
Lintel with an aluminium sheet

Argeton Detail Lintel with sheet

Lintel with ceramic tile

Argeton Detail Lintel with ceramic tile

Lintel design with sun protection

Technical drawing Argeton Lintel design with sunprotection

Bottom junction

Argeton Detail Bottom junction

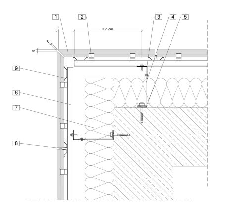
Top junction

Argeton detail Top junction

Façade and plaster

Argeton detail Facade and plaster

Façade ceiling

Argeton deteil Facade ceiling

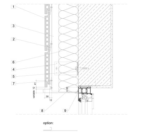
Windowsill

Argeton detail windowsill

Horizontal Substructure

Normal section

Encompassing Building Corner

Internal Corner

Reveal section

Learn more

Team Argeton

For further information, please do not hesitate to contact our service personel.

Sales Partners

We work with the best distribution partners to provide the best service anywhere in the world.

Manufacturing Partners

We work with the best manufacturing partners to provide the best service anywhere in the world.